ЖК "Экос"
от 4 099 998 a
от 152 985 a за м²
Характеристики
| Класс жилья | Эконом класс |
| Тип здания | Монолит-каркас |
| Количество этажей | 20-21 |
| Квартир | 352 |
| Паркинг | Придомовой |
| Отделка: |
Чистовая |
| Разрешение на строительство | Есть |
Оформление
| Оплата | ипотека |
| Договор | 214 ФЗ |
| Аккредитация | Альфа Банк ВТБ Сбербанк |
| Обновлено | 31 Октября 2025 |
| Дата сдачи |
Готовые (подробнее↓) корпус 1
4кв 2025 г. (Сдано в 3кв 2025 года) корпус 2
4кв 2025 г. (Сдано в 3кв 2025 года) |
ЖК "Экос" ― проект группы компаний "Домарена" в поселении Кузьмоловском. Прежнее название "Кузьмолово". Дом должен был быть сдан в 2023 году, но территорию выкупила новая компания и разрешение на строительство продлили, теперь новый срок сдачи в эксплуатацию - конец 2025 г.
В составе новостройки два монолитно-каркасных корпуса высотой 20-21 этаж. В наружной отделке предполагается использовать лицевой камень на уровне цоколя и первого этажа, выше ― лицевой кирпич.
Общий объем новой недвижимости составит 16309,6 кв. м. В комплексе спроектировано 352 квартиры, из которых 56 студий, 187 однокомнатных, 74 двухкомнатных и 35 трешек. Площади планировок составляют 24,5-74,7 кв. м, высота потолков ― 2,7 м.
На первых этажах разместятся коммерческие помещения. С двух продольных сторон одного из корпусов будут пристроены полузаглубленные одноэтажные здания досугового назначения (под тренажерный зал, бильярдную). Во дворе обустроят детскую площадку и зоны отдыха. На прилегающей территории выделят парковочные места. Отдельно застройщик намерен возвести детский сад и торговый комплекс.
Расположение и экология
В ближайших к комплексу кварталах работают детские сады, школы, поликлиника, музыкальная школа, магазины, салоны красоты. В полукилометре от новостройки находится железнодорожная станция "Кузьмолово", откуда можно уехать до "Девяткино" или Финляндского вокзала. Сообщение с городом обеспечивают и автобусные маршруты № 621, 625, 627, остановка которых расположена рядом с комплексом.
Дома строятся у зеленого массива, а неподалеку есть озеро. Однако в Кузьмоловском работают химические предприятия.
Квартиры в ЖК "Экос" цены и планировки
Студия (1 квартира, 1 планировка)
| Фото | S общ | S жил | Этаж | Сдача | Корпус | Цена за м2 | Стоимость |
|---|---|---|---|---|---|---|---|
| 26.8 м2 | 19 | 19 этаж | Сдана | корпус 1 корпус 1 | 152 985 a/м2 | 4 099 998 руб |
Однокомнатные квартиры (3 квартиры, 3 планировки)
Двухкомнатные квартиры (3 квартиры, 3 планировки)
Наличие и актуальные цены по телефону
Показать телефонЖК "Экос" на карте
Варианты оплаты ЖК "Экос"
- Долг – ₽
- Проценты – ₽
Правовые документы
Похожие новостройки
- от 3 700 008 a за студию Апартаменты AVENUE APART на Дыбенко
Невский районДыбенко ул. 21 минут
Срок сдачи 3 кв 2025 - от 3 800 228 a за студию ЖК "Новые Лаврики"
Всеволожский районДевяткино 50 минут
Срок сдачи 2 кв 2025 — 2 кв 2025 - от 3 836 090 a за студию ЖК "Невская долина"
Всеволожский районПролетарская 11 минут
Срок сдачи 3 кв 2025 — 3 кв 2025 - от 3 983 100 a за студию ЖК AEROCITY 4
Пушкинский районКупчино 61 минут
Срок сдачи 4 кв 2025 - от 4 712 260 a за студию ЖК "Смарт"
Срок сдачи 2 кв 2025
a
a за м²
| Тип | |
| Площадь | |
| Этаж | |
| Срок сдачи | |
| Отделка | |
| Корпус | |
| S кухни | |
| S жилая | |
| Потолки | 2.70 м |
Обратный звонок
Заполните контактные данные. Вам перезвонят и ответят на все вопросы.
Успешно
Мы позвоним вам в и ответим на все вопросы.
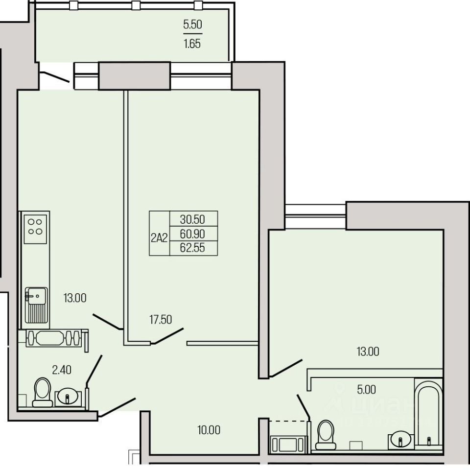
- Планировка
- На карте
- На других этажах
Звонок заказан
Ожидайте, перезвоним в ближайшее
время на номер









Отзывы о ЖК "Экос" (25)
-
Соня Беляева
23 Сентября, 20:53
-
Юлия Ветер
16 Сентября, 21:43
-
Katayeva
28 Августа, 20:31
Посмотреть все отзывыМы долго искали квартиру в зелёном районе Санкт-Петербурга и, наконец, остановились на ЖК «Экос». Место действительно удачное: рядом школы, детские сады, магазины и поликлиника, а до Охта Парка всего 10 минут пешком — отличный вариант для прогулок и активного отдыха. Планировки понравились своей продуманностью, а стильные фасады и современный дизайн домов внушают доверие. Пока дом на этапе строительства, но мы уже видим, что всё идёт по графику. Очень радует, что застройщик известен качеством и вниманием к деталям, а возможность заранее выбирать квартиру по планировке и этажу добавляет уверенности. Ждём сдачи дома и начала новой жизни, уверены, что сделали правильный выбор.
ответитьЖК Экос - отличный вариант для семьи. Район тихий, окружён сосновым бором, рядом заповедные зоны и парки для прогулок. Квартиры с качественной чистовой отделкой по дизайнерскому проекту, просторные лоджии, современная сантехника. Пешком 5 минут до ж/д станции, до центра Питера на электричке 30 минут. Планируемая сдача - 3 квартал этого года. Инфраструктура полностью развита: школы, детсады, магазины, спортшкола.
ответитьРассматриваю ЖК Экос для покупки квартиры. Меня привлекает использование качественных отделочных материалов и современная сантехника. Особенно радует, что ремонт выполняется по дизайн-проекту с профессиональным подходом. Район тихий, рядом сосновый бор и природные парки, а до центра Петербурга всего 30 минут. Важно и то, что рядом есть школы, детсады и поликлиника - для семьи с детьми идеальный вариант.
ответитьвам нужно зарегистрироваться
или авторизоваться