- Санкт-Петербург
- Выборгский район
- ЖК "Листва"
от 13 144 007 a
от 247 956 a за м²
Характеристики
| Класс жилья | Бизнес-класс |
| Тип здания | Кирпич-монолит |
| Количество этажей | 10-13 |
| Квартир | 348 |
| Паркинг | Подземный: 332 м/м |
| Отделка: |
Черновая |
Оформление
| Оплата | ипотека |
| Договор | 214 ФЗ |
| Застройщик: | Группа компаний "Трест" |
| Аккредитация | Ак Барс Альфа Банк Банк "Санкт-Петербург" еще 7 банков↓ВТБ Газпромбанк Открытие Промсвязьбанк Росбанк Россельхозбанк Сбербанк |
| Обновлено | 31 Октября 2025 |
| Дата сдачи |
3кв 2023 г. (Сдано в срок) |
ЖК "Листва" — семисекционный 10-13-этажный дом бизнес-класса на улице Лиственная в Выборгском районе Санкт-Петербурга. Компания "Строительный трест" оформит кирпично-монолитное здание в неоклассическом стиле с применением клинкерной плитки и натурального камня.
Детали проекта
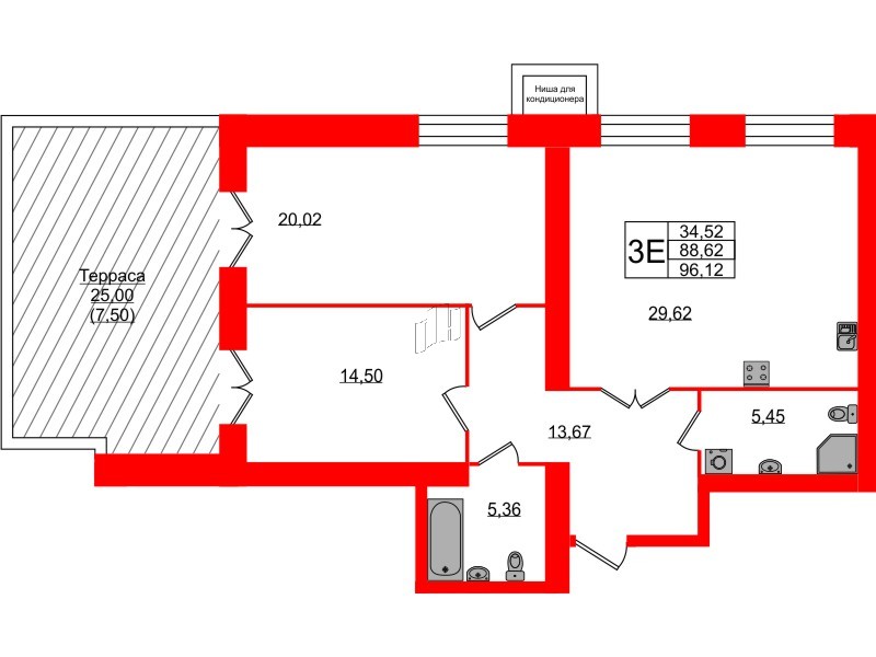
В новостройке покупателям доступны 348 квартир. Студий нет. Планировки от одно- до четырехкомнатных площадью 40,25-147,21 кв. м. Большинство вариантов двух- и трехкомнатные.
На последних этажах лоты с открытыми террасами. Часть предложений с кухнями-гостиными площадью до 29 кв. м, мастер-спальнями, классическими или французскими балконами. Предусмотрены места под гардеробные. Жилье сдается без отделки. На фасадах устроят ниши для кондиционеров, что позволит надолго сохранить вид фасадов.
Входные группы создают без порогов. Во дворе обустроят зоны для игр в волейбол, футбол и баскетбол. Детские площадки на территории с оборудованием из дерева. В местах для отдыха предусмотрены велосипедные и прогулочные дорожки. Застройщик высадит взрослые деревья, кустарники и цветники согласно проекту ландшафтного дизайна.
Двор закрыт для машин, поскольку расположен на стилобате. Под стилобатом размещен паркинг, рассчитанный на 332 машиноместа. Спуститься в гараж жители смогут лифтом с любого этажа. Гостевые автостоянки вынесены за пределы жилой зоны.
Окружение
Жилой комплекс "Листва" расположен в 300 метрах от парка Сосновка. В 15 минутах ходьбы Муринский парк. За полчаса можно дойти до Удельного парка, Верхнего, Среднего и Нижнего Большого Суздальских озер.
Инфраструктура поблизости развита. Рядом с новостройкой работают лицей №101, школа №468, гимназия №73, несколько государственных и частных детских садов, включая логопедические и комбинированного типа. Жители смогут посещать фитнес-залы с бассейнами и спорткомплекс "Сосновка парк". Возле станции метро в 1,7 км работает торговый центр "Озерки" и гипермаркет "Окей" с рестораном быстрого питания KFC. В районе несколько бюджетных и частных медицинских учреждений. До ближайшей поликлиники от дома пять минут ходьбы.
С территории "Листвы" "Строительный трест" сделает выезд на Северный проспект. Из крупных магистралей поблизости проходят проспект Энгельса и Выборгское шоссе. В пешей доступности три станции метро — "Удельная", "Озерки" и "Проспект Просвещения". Под окнами находится автобусная остановка.
Квартиры в ЖК "Листва" цены и планировки
Однокомнатные квартиры (2 квартиры, 2 планировки)
| Фото | S общ | S жил | S кухн | Этаж | Сдача | Цена за м2 | Стоимость |
|---|---|---|---|---|---|---|---|
| 45.7 м2 | 18.2 | 16.5 | 2 этаж | Сдана | 290 241 a/м2 | 13 264 014 руб |
| 46.9 м2 | 18.1 | 18 | 2 этаж | Сдана | 280 256 a/м2 | 13 144 007 руб |
Двухкомнатные квартиры (3 квартиры, 3 планировки)
Трехкомнатные квартиры (3 квартиры, 3 планировки)
Четырехкомнатные квартиры (1 квартира, 1 планировка)
| Фото | S общ | S жил | S кухн | Этаж | Сдача | Цена за м2 | Стоимость |
|---|---|---|---|---|---|---|---|
| 144.3 м2 | 73.3 | 22.8 | 13 этаж | Сдана | 330 000 a/м2 | 47 619 001 руб |
Наличие и актуальные цены по телефону
Показать телефонВ "Листве" нет малогабаритных квартир, площадь начинается от 40 кв. м. Планировки разнообразные, есть даже с террасами на последних этажах. Закрытый двор, вместительный паркинг, развитая инфраструктура и благоприятная экологическая обстановка — несомненные преимущества комплекса.
Из минусов отметим удаленность от метро, до которого пешком добираться минимум 20 минут. Как для бизнес-класса в доме слишком низкие потолки — 2,7 метра. Корпус возводится практически окна в окна к другому проекту "Строительного треста" — ЖК "Лиственный".
- Экология
- Транспортная доступность
- Инфраструктура
- Цена/качество
ЖК "Листва" на карте
Варианты оплаты ЖК "Листва"
- Долг – ₽
- Проценты – ₽
Правовые документы
Упоминания в новостях и статьях
- 03.08.2023
- 06.08.2021
Похожие новостройки
- от 8 874 003 a за студию ЖК "Дом купца Полотнова"
Фрунзенский районОбводный канал 10 минут
Срок сдачи 4 кв 2023 - от 40 267 272 a за 4 к. кв. ЖК "ID Park Pobedy"
Московский районЭлектросила 16 минут
Срок сдачи 1 кв 2024 — 2 кв 2023 - от 7 921 200 a за студию ЖК "Гавань капитанов"
Василеостровский районПриморская 37 минут
Срок сдачи 2 кв 2023 - от 18 901 999 a за 2 к. кв. ЖК "VEREN NEXT ШУВАЛОВСКИЙ"
Приморский районКомендантский пр. 17 минут
Срок сдачи 3 кв 2023 — 3 кв 2023 - от 8 914 500 a за студию ЖК "Колумб"
Василеостровский районПриморская 41 минут
Срок сдачи 2 кв 2023
a
a за м²
| Тип | |
| Площадь | |
| Этаж | |
| Срок сдачи | |
| Отделка | |
| Корпус | |
| S кухни | |
| S жилая | |
| Потолки | 2.70 м |
Обратный звонок
Заполните контактные данные. Вам перезвонят и ответят на все вопросы.
Успешно
Мы позвоним вам в и ответим на все вопросы.
- Планировка
- На карте
- На других этажах
Звонок заказан
Ожидайте, перезвоним в ближайшее
время на номер









Отзывы о ЖК "Листва" (12)
-
Ибрагим
07 Февраля 2023, 17:07
-
Anna
07 Марта 2023, 01:13
-
NoName
26 Апреля 2022, 11:05
-
Гость
26 Января 2023, 23:11
-
Анна
22 Марта 2022, 18:58
-
Подозрительный комментарий Дед
02 Марта 2023, 15:00
Посмотреть все отзывыКакой нормальный человек после же Сергей Есенин купит у них квартиру
ответитьСергей Есенин ещё по качеству стройки лучше, чем Лиственный несмотря на свои габариты
ответитьЖиву в ЖК Лиственный с 2016г. Все, что обещал СтройТрест, кроме собственно дома, осталось их фантазиями. Инженерная начинка дома перекраивалась по ходу строительства (лифты, окна, радиаторы, отделка МОП, внутренние перегородки и т.д.). Качество строительства также можно оценить, посмотрев на фасад дома, он с 2019г. обтянут сеткой, т.к. кирпичи рассыпаются. Слышимость в квартирах плохая, укладывая детей спать слышишь, как в соседней квартире негромко разговаривают, готовят еду. Подъезды украсили в стиле 90-х, выкрасив ярко-оранжевой краской, заменив планируемые Шиндлеры китайскими Штеймбергами, из которых часто один, а иногда и два бывают сломаны. Самое "забавное" для нас было, когда мы делали ремонт (у нас последний этаж) и потекла крыша. По гарантии были проведены работы и проблема вроде как решилась. Но в 2022г., вуаля, крыша потекла снова (!) и это в новом доме, где мы покупали последний этаж с наценкой к обычной стоимости, чтобы видеть побольше неба и света, чтобы не слышать соседей сверху!
ответитьПро качественные детские площадки, обещанные закрытые дворы и приватность территории наверное лучше промолчать, т.к. все это осталось в красочных буклетах, которые к окончанию строительства претерпели немалые изменения.
Да, про инфраструктуру стоит также немного поделиться ощущениями. В 2015, когда мы покупали квартиру, нам рассказывали про 2 дет. сада и школу, тогда мы только ждали первого ребенка. В итоге оба наших ребенка ходят в дет. сад за Северным проспектом, а единственный детский сад построили и запустили лишь в 2021г. Про школу пока ни слуху, ни духу, лишь есть информация о завершении ее проектирования, а когда начнется строительство - остается гадать. Видимо, и в школу придется идти куда-то, где будут места по остаточному принципу.
Так что если вы мечтаете о жилье "бизнес"-класса, то это точно не эта локация и не уверен, что стоит покупать сейчас обещания. За такие деньги лучше дождаться завершения строительства и покупать готовый продукт, который можно оценить по факту, а не по красивым буклетам. Еще немаловажно иметь ввиду окружение дома - его можно увидеть прямо сейчас и оно никак не соотносится с комфортной средой. Я бы сказал, нужно дождаться облагораживания всех пустырей со стороны Лиственной ул. и ул. Жака Дюкло, выноса гаражей и завершения строительства на их месте следующих ЖК/обещанной социалки, строительства выездов на Северный проспект, возможного сноса корпусов ТК Маршал со строительством жилья на их месте, а уже затем смотреть на данную локацию, как комфортную и приспособленную для удобного проживания. Сейчас же много "но" в данном месте.
Живу в этом же доме, подписываюсь под каждым словом!
ответитьСтрой тресту верить нельзя. Сами купились на их ЖК Лиственный, обещали и супер детские площадки и двор без машин и что не будет больше никакого высотного строительства под окнами, а в итоге всё наоборот. Школа одна 486 к нашему микрорайону, и она не резиновая. Поликлиники уже стонут от наплыва новых жильцов, врачи на справляются. Обещали как раз поликлинику построить, а в итоге строят Листву. Дорог выходящих на Тореза и особенно Северный пр. нет! В Часы пик утром и вечером дорожный коллапс.
ответитьПоликлинику должны построить на месте гаражного кооператива между ЖК Есенин и пожарной частью. ЖК Листва совсем на другом участке расположена
ответитьвам нужно зарегистрироваться
или авторизоваться