- Санкт-Петербург
- Петроградский район
- ЖК "ЛДМ"
- Фотографии 1/1
от 32 686 574 a
от 475 599 a за м²
Характеристики
| Класс жилья | Элит-класс | 
| Тип здания | Кирпич-монолит | 
| Квартир | 463 | 
| Паркинг | Подземный: 470 м/м | 
| Разрешение на строительство | Есть | 
Оформление
| Оплата | ипотека | 
| Договор | 214 ФЗ | 
| Застройщик: | Эталон | 
| Аккредитация | Альфа Банк Банк "Санкт-Петербург" ВТБ еще 4 банка↓Дом РФ Московский кредитный банк Совкомбанк Т-банк | 
| Обновлено | 31 Октября 2025 | 
| Дата сдачи |  
					
																					4кв 2027 г. (строится)
								
												  | 
Группа "Эталон" (ЛенСпецСМУ) на месте Ленинградского дворца молодёжи построит жилой комплекс элит-класса в Петроградском районе Санкт-Петербурга. На Песочной набережной появится ЖК "ЛДМ", состоящий из 17 секций, рассчитанный на 463 квартиры. Ввод в эксплуатацию намечен на конец 2027 года. Выдача ключей состоится до 30 сентября 2028 года. Продажи открылись в апреле 2024 года.
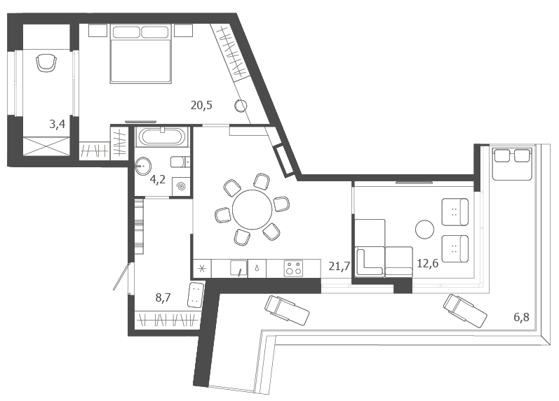
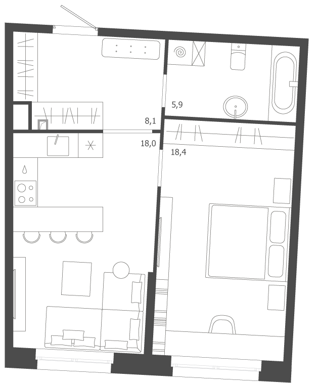
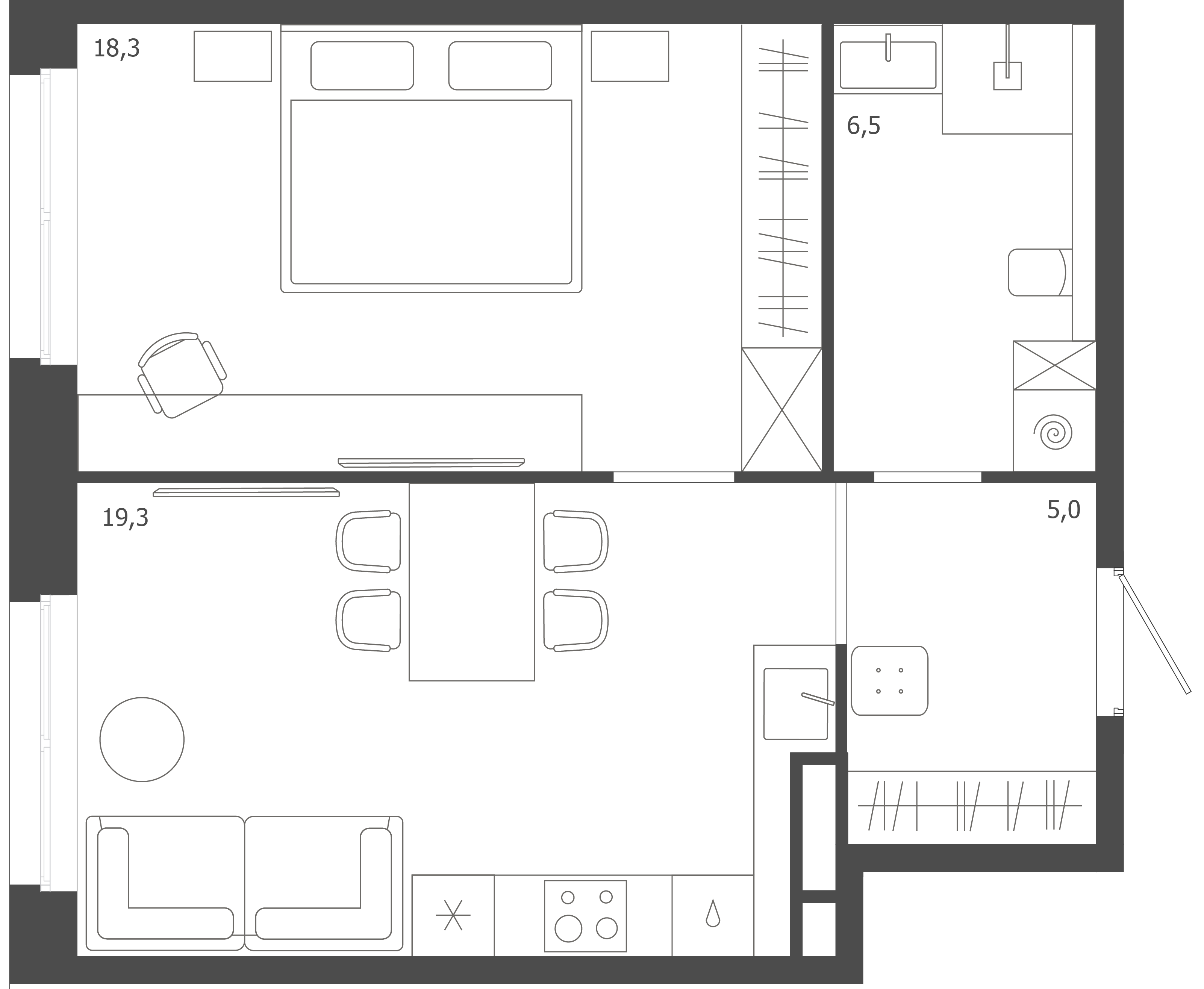
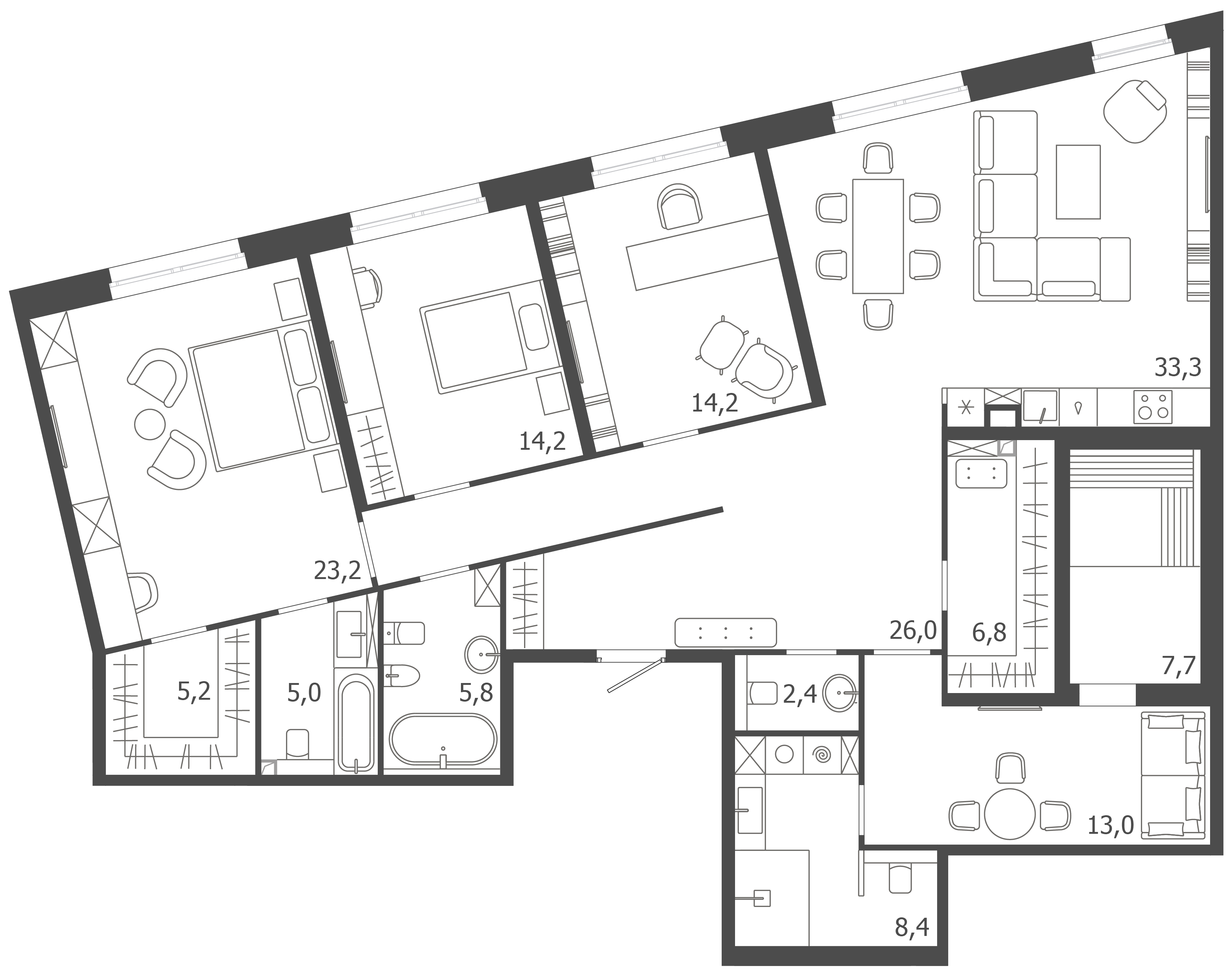
В отделке фасадов будут использованы панели, имитирующие латунь. Кроме квартир в доме будет 8 трехуровневых сити-вилл. Квартирография начиняется от однокомнатных квартир площадью 41,9 кв. м, самая большая квартира - пятикомнатная, площадью 173,9 кв. м. Площади сити-вилл начинаются от 430,7 кв. м. Среди предложений есть квартиры с открытыми террасами, окном в ванной, окном в гардеробной, трехсторонние квартиры, квартиры с мини-спортзалом и домашним кинотеатром. Остекление будет угловым, увеличенным и панорамным. Высота потолков от 3 до 5,63 м. Квартиры передаются в черновой отделке.
В подземном паркинге 470 машино-мест, в том числе с зарядкой для электромобиля, также возможно приобрести кладовое помещение, всего их будет 181. Инфраструктура проекта подразумевает круглосуточный консьерж-сервис, услугу valet parking. Двор-сад будет приватным, на нем расположится летняя терраса, детский центр творчества, детская горка, зоны для занятий спортом и йогой, раздевалки.
ЖК "ЛДМ" находится в 18 минутах от станции метро "Чкаловская", автомобилисты могут воспользоваться Петроградской улицей, Левашовским проспектом, Петроградской набережной, но в этих направлениях часто бывают пробки. Инфраструктура в районе давно сложившаяся, работают школы №№ 25, 55, детские сады №№ 24, 63, 69, 93, частные детские сады, консультативно-диагностический центр с поликлиникой, детское поликлиническое отделение №14, клуб настольного теннисса, магазины "Лента", "Перекрёсток", "ВкусВилл", "Семишагофф".
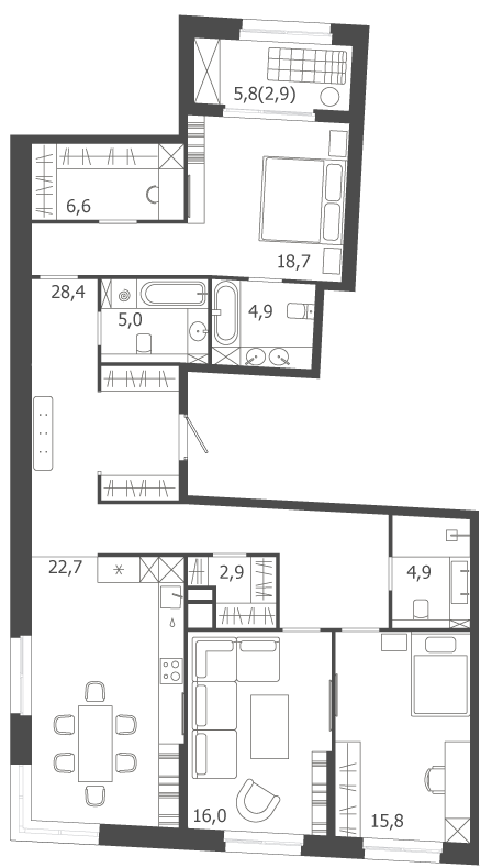
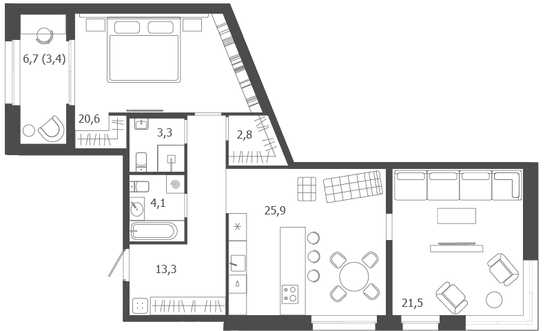
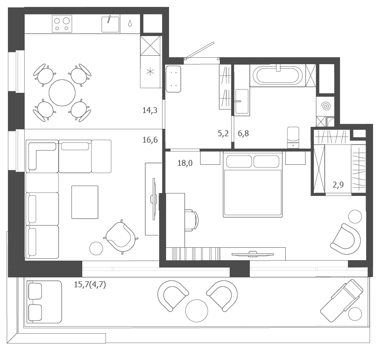
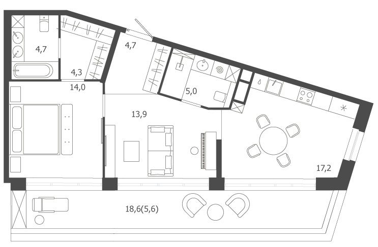
Квартиры в ЖК "ЛДМ" цены и планировки
Однокомнатные квартиры (22 квартиры, 19 планировок)
Двухкомнатные квартиры (41 квартира, 40 планировок)
Трехкомнатные квартиры (31 квартира, 28 планировок)
Четырехкомнатные квартиры (4 квартиры, 4 планировки)
Пять и более комнат (1 квартира, 1 планировка)
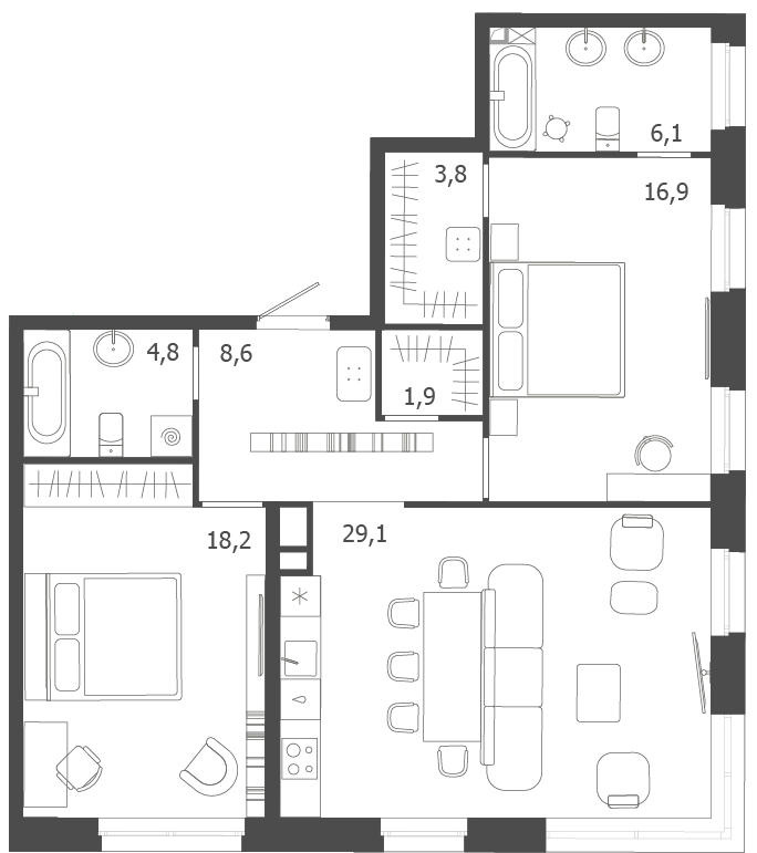
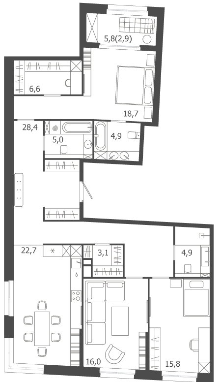
| Фото | S общ | S жил | S кухн | Этаж | Сдача | Корпус | Цена за м2 | Стоимость | 
|---|---|---|---|---|---|---|---|---|
|   | 173.7 м2 | 84.3 | 32.9 | 5 этаж | 4 кв 2027 | 1 корпус 1 корпус | 1 112 770 a/м2 | 193 287 950 руб | 
Наличие и актуальные цены по телефону
Показать телефонЖК "ЛДМ" на карте
Варианты оплаты ЖК "ЛДМ"
- Долг – ₽
- Проценты – ₽
Правовые документы
Соседние новостройки
-    ЖК "ASTRVM" ЖК "ASTRVM"Петроградский район (м. Крестовский остров) от 123 308 995 руб.
-    ЖК "Северная Корона" ЖК "Северная Корона"Петроградский район (м. Петроградская) от 31 030 999 руб.
-    ЖК "Визионер" ЖК "Визионер"Петроградский район (м. Чкаловская) 
-    ЖК "Квадрия" ЖК "Квадрия"Петроградский район (м. Чкаловская) от 41 085 002 руб.
-    ЖК Клубный дом... ЖК Клубный дом...Петроградский район (м. Петроградская) 
-    ЖК "Family Loft" ЖК "Family Loft"Петроградский район 
-    ЖК "Meltzer Hall"... ЖК "Meltzer Hall"...Петроградский район (м. Петроградская) от 29 920 006 руб.
-    ЖК "Мадонна Бенуа" ЖК "Мадонна Бенуа"Петроградский район (м. Петроградская) от 55 000 079 руб.
-    ЖК "Familia" ЖК "Familia"Петроградский район (м. Крестовский остров) от 25 700 140 руб.
-    Апартаменты Neva Residence Апартаменты Neva ResidenceПетроградский район (м. Чкаловская) от 14 338 300 руб.
-    Апартаменты "17/33... Апартаменты "17/33...Петроградский район (м. Чкаловская) от 15 199 155 руб.
Похожие новостройки
-  от 10 417 719 a за студию ЖК BASHNI ELEMENT  Василеостровский районПриморская 54 минут Срок сдачи 2 кв 2028 
-  от 14 479 346 a за студию ЖК N8  Центральный районАлександра Невского 20 минут Срок сдачи 2 кв 2027 
-  от 12 219 129 a за студию ЖК "Legenda Васильевского"  Василеостровский районГорный институт 24 минут Срок сдачи 4 кв 2027 — 4 кв 2027 
-  от 10 655 099 a за студию ЖК "Литера"  Невский районЕлизаровская 5 минут Срок сдачи 3 кв 2027 
-  от 13 539 983 a за студию ЖК "Северный ветер"  Василеостровский районПриморская 46 минут Срок сдачи 2 кв 2028 — 2 кв 2028 
 
 a
a за м²
| Тип | |
| Площадь | |
| Этаж | |
| Срок сдачи | |
| Отделка | |
| Корпус | |
| S кухни | |
| S жилая | |
| Потолки | 3.00 м | 
Обратный звонок
Заполните контактные данные. Вам перезвонят и ответят на все вопросы.
Успешно
Мы позвоним вам в и ответим на все вопросы.
- Планировка
- На карте
- На других этажах
Звонок заказан
Ожидайте, перезвоним в ближайшее
время на номер 
 
 


























































































вам нужно зарегистрироваться
или авторизоваться