- Санкт-Петербург
- Приморский район
- ЖК "Прайм Приморский"
ЖК "Прайм Приморский"
от 7 400 198 a
от 266 713 a за м²
Характеристики
| Класс жилья | Комфорт-класс |
| Тип здания | Кирпич-монолит |
| Количество этажей | 14 |
| Паркинг | Подземный, Многоуровневый |
| Отделка: |
Чистовая |
| Разрешение на строительство | Есть |
Оформление
| Оплата | ипотека |
| Договор | 214 ФЗ |
| Застройщик: | Setl Group |
| Аккредитация | Альфа Банк Промсвязьбанк Сбербанк Совкомбанк |
| Обновлено | 19 Ноября 2025 |
| Дата сдачи |
Готовые и 1кв 2026 (подробнее↓) 1 корпус
3кв 2025 г. (Сдано в 4кв 2025 года) 2 корпус
3кв 2025 г. (Сдано в 4кв 2025 года) 3 корпус
1кв 2026 г. (строится)
|
В декабре 2022 в продажу поступил новый проект "Прайм Приморский" от Setl Group, расположенный на Парашютной улице в Приморском районе. Строительство идет в несколько очередей, первую очередь будет сдана в 3 квартале 2025 г., вторая в 1 квартале 2026 г. Застройщик позиционирует комплекс как высокий комфорт-класс.
Фасады будут выполнены из керамогранита и фиброцементных панелей, украшены французскими балконами с ограждениями из ударопрочного стекла. В вечернее время дома будут подсвечиваться.
Среди планировок представлены варианты от студий до "евро" четырехкомнатных квартир. Высота потолка - 2,77 на типовом этаже и 3,07 м. на последних этажах. Жилье покупателям передадут с чистовой отделкой. За дополнительную плату можно заказать меблировку.
Инфраструктура комплекса будет включать в себя:
- лаундж-зону на крыше с перголой с качелями;
- детский сад;
- школу;
- подземный и отдельностоящий паркинг;
- детские и спортивные площадки;
- липовую аллею и "парящий" мост.
ЖК "Прайм Приморский" находится в 15 минутах езды на автомобиле от станции метро "Комендантский проспект", на общественном транспорте можно доехать на 180 и 194 автобусах, остановка которых находится практически напротив жилого комплекса. Ближайшее окружение комплекса насыщено инфраструктурой, работают школы, детские сады, магазины, спортивные клубы, в 10 минутах пешком находится пляж на берегу Шуваловского карьера и Шуваловский лес.
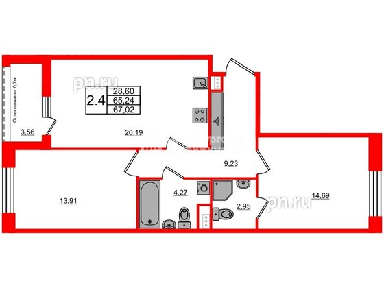
Квартиры в ЖК "Прайм Приморский" цены и планировки
Студия (5 квартир, 5 планировок)
Однокомнатные квартиры (5 квартир, 5 планировок)
Двухкомнатные квартиры (6 квартир, 6 планировок)
Трехкомнатные квартиры (2 квартиры, 2 планировки)
Наличие и актуальные цены по телефону
Показать телефонЖК "Прайм Приморский" на карте
Варианты оплаты ЖК "Прайм Приморский"
- Долг – ₽
- Проценты – ₽
Правовые документы
Соседние новостройки
Упоминания в новостях и статьях
- 12.10.2024
- 23.06.2023
- 21.06.2023
- 07.03.2023
- 15.12.2022
Похожие новостройки
- от 9 480 000 a за 1 к. кв. ЖК "БФА в Озерках"
Выборгский районПарнас 48 минут
Срок сдачи 2 кв 2025 - от 6 125 577 a за студию Апартаменты "Вольта"
Красногвардейский районЛадожская 8 минут
Срок сдачи 3 кв 2025 - от 7 200 746 a за студию ЖК "Лайнеръ"
Невский районЛомоносовская 61 минут
Срок сдачи 3 кв 2025 - от 5 883 000 a за студию Апартаменты "YE’S LEADER"
Московский районМосковская 19 минут
Срок сдачи 4 кв 2025 - от 6 412 292 a за студию ЖК "Академик"
Красногвардейский районАкадемическая 54 минут
Срок сдачи 3 кв 2025 — 4 кв 2025
a
a за м²
| Тип | |
| Площадь | |
| Этаж | |
| Срок сдачи | |
| Отделка | |
| Корпус | |
| S кухни | |
| S жилая | |
| Потолки | 2.77 м |
Обратный звонок
Заполните контактные данные. Вам перезвонят и ответят на все вопросы.
Успешно
Мы позвоним вам в и ответим на все вопросы.
- Планировка
- На карте
- На других этажах
Звонок заказан
Ожидайте, перезвоним в ближайшее
время на номер


















ЖК "ЦДС Dreamline"
ЖК Ultra City 3.0
ЖК "Заповедный парк"
ЖК "Орловский парк"
Отзывы о ЖК "Прайм Приморский" (20)
-
Константин Зинченко
28 Октября, 09:56
-
Подозрительный комментарий Артем
17 Апреля, 16:21
-
Юлия
31 Марта, 17:52
Посмотреть все отзывыНа первый взгляд выглядит прикольно. Комплекс современный и архитектуру тут прям интересную предлагают. Планировки неплохие, потолки 2,77 м - нормально для жилья высокого комфорт-класса. Меня еще удивило что на верхних этажах потолки аж до 3 метров. Плюс касаемо места, есть зелень и рядом Шуваловский карьер. Самое то для прогулок. До метро нужно конечно добраться….Но радует что больше общественного транспорта делают. Хотел бы тут пожить, посмотреть как на самом деле
ответитьПо рендерам приятно видеть, что достаточно зелено рядом. И дизайнерское решение самого жк радует глаз. Особенно нравится лаунж зона на крыше.
ответитьПрекрасный жк, очень красивый и с комфортом
ответитьвам нужно зарегистрироваться
или авторизоваться