- Санкт-Петербург
- Калининский район
- ЖК "Аурум"
- Фотографии 1/1
от 8 700 848 a
от 325 129 a за м²
Характеристики
| Класс жилья | Комфорт-класс |
| Тип здания | Кирпич-монолит |
| Количество этажей | 19 |
| Квартир | 602 |
| Паркинг | Подземный: 140 м/м |
| Отделка: |
Чистовая Черновая Предчистовая |
| Разрешение на строительство | Есть |
Оформление
| Оплата | ипотека |
| Договор | 214 ФЗ |
| Застройщик: | Холдинг "РСТИ" (Росстройинвест) |
| Аккредитация | Альфа Банк Банк "Санкт-Петербург" ВТБ еще 3 банка↓Дом РФ Сбербанк Совкомбанк |
| Обновлено | 31 Января 2026 |
| Дата сдачи |
1кв 2030 г. (строится)
|
ЖК "Аурум" - жилой квартал комфорт-класса от "РСТИ". В проекте будет семь 7-17-этажных корпусов, строительство ведется в Калининском районе на пересечении проспектов Маршала Блюхера и Кондратьевского. Фасады будут облицованы керамогранитом, разноэтажность и золотое оформление оконных проемов выделяет комплекс на фоне существующей застройки.
К покупке предложено 602 квартиры от студий до трехкомнатных вариантов, площадь квартир начинается от 18.54 кв.м., самая крупная "трешка" 79.25 кв.м. Высота потолка меняется в зависимости от этажа и начинается от 2.74 м, самые высокие потолки - 3.04 м. Квартиры продаются с черновой, предчистовой или чистовой отделке.
В подземном отапливамом паркинге будет расположено 37 кладовых и 140 машино-мест. Территория комплекса будет закрыта и благоустроена, центральным элементом на детской площадке будет "Волшебная горка".
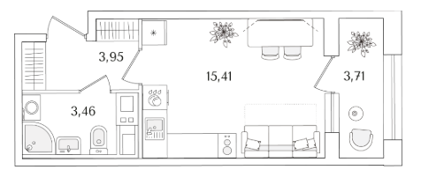
Квартиры в ЖК "Аурум" цены и планировки
Студия (3 квартиры, 3 планировки)
Однокомнатные квартиры (3 квартиры, 3 планировки)
Двухкомнатные квартиры (3 квартиры, 3 планировки)
Трехкомнатные квартиры (2 квартиры, 2 планировки)
Наличие и актуальные цены по телефону
Показать телефонЖК "Аурум" на карте
Варианты оплаты ЖК "Аурум"
- Долг – ₽
- Проценты – ₽
Правовые документы
Соседние новостройки
Упоминания в новостях и статьях
- 05.08.2025
- 08.07.2025
a
a за м²
| Тип | |
| Площадь | |
| Этаж | |
| Срок сдачи | |
| Отделка | |
| Корпус | |
| S кухни | |
| S жилая | |
| Потолки | 2.72 м |
Обратный звонок
Заполните контактные данные. Вам перезвонят и ответят на все вопросы.
Успешно
Мы позвоним вам в и ответим на все вопросы.
- Планировка
- На карте
- На других этажах
Звонок заказан
Ожидайте, перезвоним в ближайшее
время на номер











ЖК "Три Грации"
ЖК "Приоритет"
ЖК "Master Place"
ЖК "Сампсониевский,...
Отзывы о ЖК "Аурум" (16)
-
Марина
23 Января, 12:28
-
Подозрительный комментарий Ксения
25 Ноября 2025, 11:36
-
Лаура
25 Ноября 2025, 11:29
Посмотреть все отзывыстройка встала. забор поставили и всё!
ответитьЛюблю такие проекты. Нет бесконечных стен муравейников. Аккуратные красивые «башенки». И двор выглядит крайне приятно. Закрытый и уютный с большим плэйхабом для игр детей и зелёными зонами. А интерьеры лобби выглядят очень статусно и дорого.
ответитьОтличная идея двора! Выглядит интересно и красиво. Нравится центральный детский комплекс и общая стилистика плэйхаба.
ответитьвам нужно зарегистрироваться
или авторизоваться