- Санкт-Петербург
- Петроградский район
- Апартаменты Zen garden
Апартаменты Zen garden
от 34 322 250 a
от 457 630 a за м²
Характеристики
| Класс жилья | Бизнес-класс |
| Тип здания | Кирпич-монолит |
| Количество этажей | 11 |
| Апартаментов | 124 |
| Паркинг | Подземный: 32 м/м, Наземный: 32 м/м |
| Отделка: |
Чистовая Черновая |
| Разрешение на строительство | Есть |
Оформление
| Тип недвижимости | апартаменты |
| Оплата | ипотека |
| Договор | 214 ФЗ |
| Застройщик: | Yard Group |
| Аккредитация | Альфа Банк ВТБ Дом РФ еще 5 банков↓Промсвязьбанк Росбанк Россельхозбанк Сбербанк Уралсиб |
| Обновлено | 14 Декабря 2025 |
| Дата сдачи |
4кв 2023 г. (Перенесено на 4кв 2025 года) |
В Петроградском районе Санкт-Петербурга девелопер Yarn Group возводит в непосредственной близости от ст.м. "Спортивная" комплекс ZEN GARDEN.
Детали проекта
ZEN GARDEN рассчитан на 124 апартамента, высота потолка начинается от 2.55 и зависит от этажа, на последнем, девятом этаже, высота составит 3.6 м. Среди предложенных апартаментов есть 5 пентхаусов с террасами, индивидуальными лифтами и частным входом в спа-зону. Апартаменты будут передаваться с полной отделкой и мебелью. Фасады будут с панорамным остеклением на базе алюминиевых систем. В отделке лоббы используют натуральный камень, дерево и металл
На подземных этажах разместится паркинг на 32 машиноместа и бассейн, на первых четырех этажах запланированы бар, ресторан, кабинет медицинского работника, парикмахерская и офисы с переговорными комнатами.
Апартаменты в Апартаменты Zen garden цены и планировки
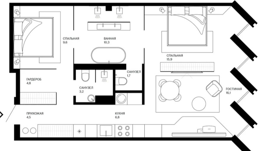
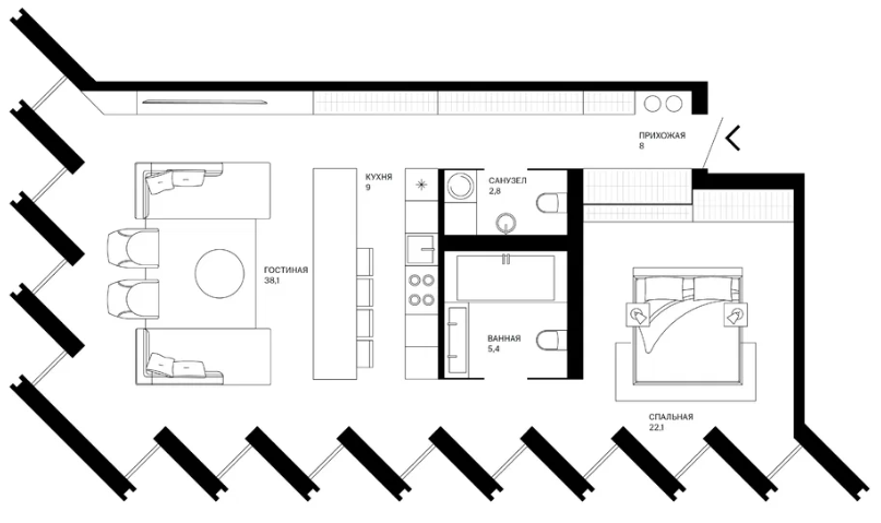
Двухкомнатные апартаменты (2 апартаментов, 2 планировки)
Трехкомнатные апартаменты (3 апартаментов, 3 планировки)
Наличие и актуальные цены по телефону
Показать телефонАпартаменты Zen garden на карте
Варианты оплаты Апартаменты Zen garden
- Долг – ₽
- Проценты – ₽
Правовые документы
Соседние новостройки
-
ЖК Progect 6/3 Петроградский район (м. Спортивная)
от 16 397 986 руб. -
ЖК "Family Loft" Петроградский район
-
Апартаменты "17/33... Петроградский район (м. Чкаловская)
от 15 829 618 руб. -
ЖК "Квадрия" Петроградский район (м. Чкаловская)
от 41 085 002 руб. -
Апартаменты Neva Residence Петроградский район (м. Чкаловская)
от 16 166 000 руб. -
ЖК "Визионер" Петроградский район (м. Чкаловская)
от 31 323 403 руб. -
ЖК "Мадонна Бенуа" Петроградский район (м. Петроградская)
от 22 819 999 руб.
Похожие новостройки
- от 20 499 619 a за студию ЖК Клубный дом "МИРЪ"
Центральный районПлощадь Восстания 14 минут
Срок сдачи 4 кв 2025 — 4 кв 2025 - от 3 168 927 a за 1 к. кв. ЖК Shepilevskiy
Московский районМосковская 12 минут
Срок сдачи 4 кв 2025 - от 13 449 986 a за студию ЖК "Коллекционный дом 1919"
Московский районМосковские ворота 6 минут
Срок сдачи 4 кв 2025 - от 57 205 362 a за 3 к. кв. ЖК "Большой 67"
Василеостровский районГорный институт 6 минут
Срок сдачи 2 кв 2025 - от 35 673 000 a за 1 к. кв. ЖК "е.волюция"
Московский районМосковские ворота 3 минут
Срок сдачи 3 кв 2025 — 3 кв 2025
a
a за м²
| Тип | |
| Площадь | |
| Этаж | |
| Срок сдачи | |
| Отделка | |
| Корпус | |
| S кухни | |
| S жилая | |
| Потолки | 2.55 м |
Обратный звонок
Заполните контактные данные. Вам перезвонят и ответят на все вопросы.
Успешно
Мы позвоним вам в и ответим на все вопросы.
- Планировка
- На карте
- На других этажах
Звонок заказан
Ожидайте, перезвоним в ближайшее
время на номер





Отзывы о Апартаменты Zen garden (1)
Кто разрешил строительство на территории спорт комплекса Юбилейный
ответитьвам нужно зарегистрироваться
или авторизоваться