- Санкт-Петербург
- Василеостровский район
- ЖК "17 линия"
от 11 285 824 a
от 382 301 a за м²
Характеристики
| Класс жилья | Бизнес-класс |
| Тип здания | Кирпич-монолит |
| Квартир | 805 |
| Паркинг | Подземный, Наземный |
| Разрешение на строительство | Есть |
Оформление
| Договор | 214 ФЗ |
| Застройщик: | Отделстрой |
| Обновлено | 11 Апреля 2026 |
| Дата сдачи |
3кв 2028 (подробнее↓) корпус Б
3кв 2028 г. (строится)
корпус А
3кв 2028 г. (строится)
|
ЖК "17 линия" от компании "Отделстрой" строится на 17-й линии Васильевского острова в Санкт-Петербурге на территории бывшего эскалаторного завода имени Котлякова. Разрешение на строительство выдано в августе 2025 года, завершение работ запланировано на III квартал 2028 года.
Проект представляет собой 12-этажный дом с десятью подъездами. Центральная секция выполнена в каскадной форме с открытыми террасами на выступах. Архитектура отличается сдержанностью форм с элементами голландского стиля.
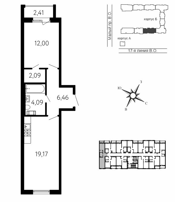
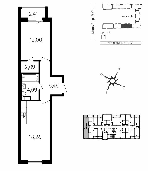
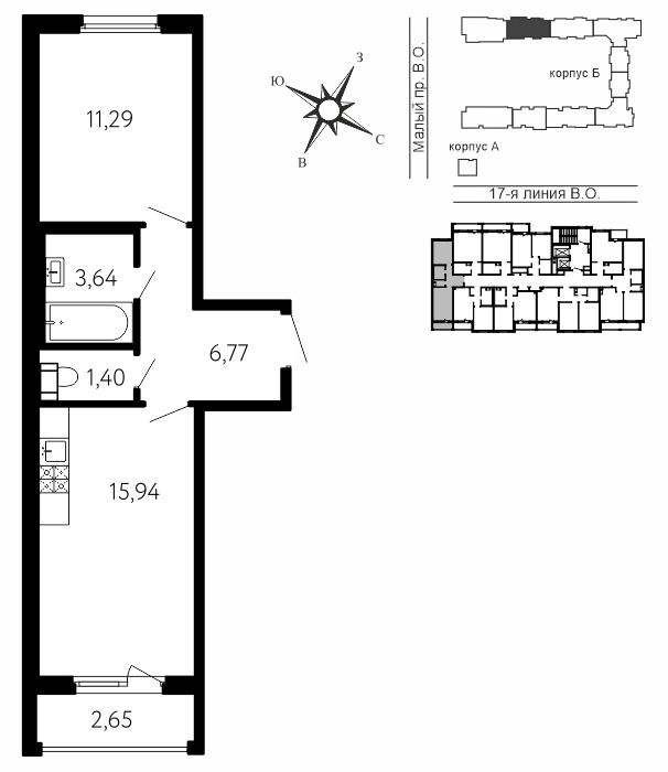
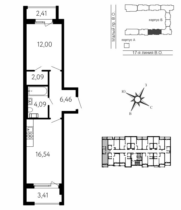
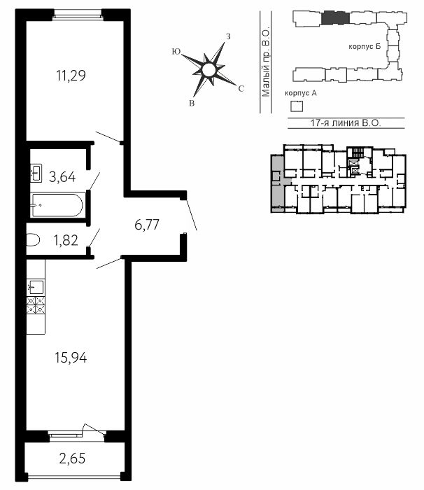
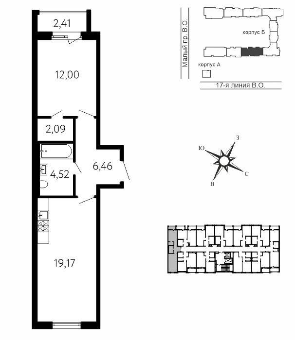
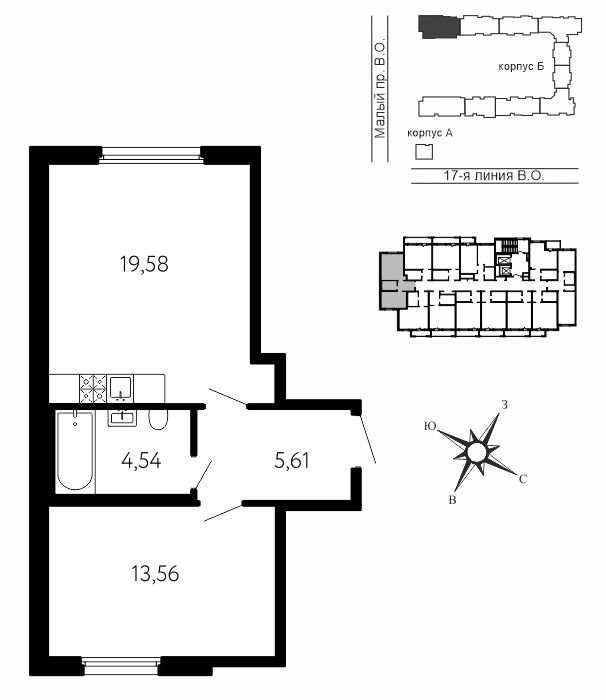
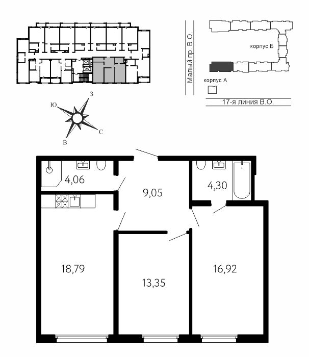
В доме предусмотрены студии и квартиры с одной, двумя или тремя спальнями, площадь квартир от 28 до 87 кв.м., высота потолка 2,73 м. Квартиры передаются с предчистовой отделкой или полной чистовой отделкой. На первых этажах размещаются коммерческие помещения.
Двор будет закрытым с круглосуточным видеонаблюдением. На территории запланированы детские игровые площадки, воркаут-зоны с турниками и брусьями, зоны отдыха с качелями и скамейками. Подземный паркинг рассчитан на 253 машино-места с лифтовым выходом на жилые этажи. Дополнительно предусмотрены индивидуальные кладовые для хранения вещей.
В пешей доступности находятся магазины, детские сады, школы, подростково-молодёжный клуб "Отвага", хоккейный центр "Ледокол", клуб единоборств, городские поликлиники №3 и №4.
Квартиры в ЖК "17 линия" цены и планировки
Студия (66 квартир, 22 планировки)
Однокомнатные квартиры (118 квартир, 46 планировок)
Двухкомнатные квартиры (87 квартир, 34 планировки)
Трехкомнатные квартиры (22 квартиры, 15 планировок)
Наличие и актуальные цены по телефону
Показать телефонЖК "17 линия" на карте
Правовые документы
Соседние новостройки
-
ЖК "Ассамблея" Василеостровский район (м. Горный институт)
от 13 639 783 руб. -
ЖК "Большой 67" Василеостровский район (м. Горный институт)
от 57 205 362 руб. -
Апартаменты "17/33... Петроградский район (м. Чкаловская)
от 15 916 786 руб. -
ЖК "Нева Резиденс" Петроградский район (м. Чкаловская)
от 19 986 329 руб. -
ЖК "Парусная 1" Василеостровский район (м. Приморская)
от 11 816 001 руб. -
ЖК "Шкиперский 19" Василеостровский район (м. Приморская)
от 11 613 660 руб. -
ЖК Империал клаб Василеостровский район (м. Горный институт)
от 25 734 599 руб. -
ЖК "Монодом арт" Василеостровский район (м. Горный институт)
Похожие новостройки
- от 13 675 243 a за студию ЖК "Передвижники"
Адмиралтейский районБалтийская 18 минут
Срок сдачи 1 кв 2029 - от 13 639 783 a за студию ЖК "Ассамблея"
Василеостровский районГорный институт 15 минут
Срок сдачи 3 кв 2028 — 3 кв 2028 - от 13 880 259 a за студию ЖК "Цвет Зеленогорска"
Срок сдачи 3 кв 2028 - от 12 713 986 a за студию ЖК "Дом на Курской"
Фрунзенский районОбводный канал 10 минут
Срок сдачи 1 кв 2028 - от 7 650 004 a за студию ЖК "Сэтл Ривьера"
Невский районДыбенко ул. 48 минут
Срок сдачи 1 кв 2028 — 1 кв 2028
a
a за м²
| Тип | |
| Площадь | |
| Этаж | |
| Срок сдачи | |
| Отделка | |
| Корпус | |
| S кухни | |
| S жилая | |
| Потолки | 2.73 м |
Обратный звонок
Заполните контактные данные. Вам перезвонят и ответят на все вопросы.
Успешно
Мы позвоним вам в и ответим на все вопросы.
- Планировка
- На карте
- На других этажах
Звонок заказан
Ожидайте, перезвоним в ближайшее
время на номер





















































































































вам нужно зарегистрироваться
или авторизоваться