- Санкт-Петербург
 - Василеостровский район
 - ЖК "Шкиперский 19"
 
от 8 836 500 a
от 328 900 a за м²
Характеристики
| Класс жилья | Комфорт-класс | 
| Тип здания | Кирпич-монолит | 
| Количество этажей | 3-14 | 
| Квартир | 787 | 
| Паркинг | Подземный: 490 м/м | 
| Разрешение на строительство | Есть | 
Оформление
| Оплата | ипотека | 
| Договор | 214 ФЗ | 
| Застройщик: | ПИК | 
| Аккредитация |  Альфа Банк ВТБ Газпромбанк еще 5 банков↓Дом РФ Промсвязьбанк Россельхозбанк Сбербанк Совкомбанк  |  
| Обновлено | 03 Ноября 2025 | 
| Дата сдачи |   
        			Готовые и 2кв 2027        			(подробнее↓)    1 корпус 
					
							
								
								1кв 2025 г. (Сдано в 2кв 2025 года)     2 корпус 
					
																					2кв 2027 г. (строится)
								
												    |  
На участке площадью 4 га, ранее принадлежащим Институту радиоаппаратуры на Васильевском острое Санкт-Петербурга ГК ПИК начала строительство проекта комфорт-класса под названием "Шкиперский 19". Первая очередь планируется к сдаче в 2025 году, информации по остальным очередям пока нет, но известно что планируется 12 корпусов, а также детский сад и школа.
Архитектуру новостройки разрабатывало бюро "Студия 44", фасады будут отделаны кирпичом в теплых оттенках, от светло-бежевого к коричневому. В первом корпусе запланировано шесть 12-этажных секций, объединенных галереей, в которой откроются коммерческие помещения. Застройщик предусмотрел классические планировки и европейские, квартиры предложены от студий до трехкомнатных вариантов. Покупателям предложены квартиры с мастер-спальными, гостевыми санузлами, постирочными, гардеробными и балконом. В стоимость жилья входит предчистовая отделка.
На подземном этаже застройщик предлагает 91 кладовую и 490 машино-мест. В парадных оборудуют колясочные и лапомойку.
Располагается ЖК "Шкиперский 19" неподалеку от Наличной улицы и Малый проспект В.О., до ЗСД ехать всего 10 минут, а пешком можно дойти до станции метро "Приморская". По Наличной улице ходит большое количество общественного транспорта: автобусы, троллейбусы и трамваи. С торговой и социальной инфраструктурой в районе тоже дело обстоит неплохо, но вопрос вызывает экология, до скверов довольно далеко, промышленные предприятия и порт загрязняют воздух, хотя недалеко находится залив и ветер сдувает большую часть вредных выбросов.
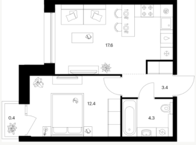
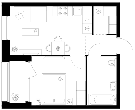
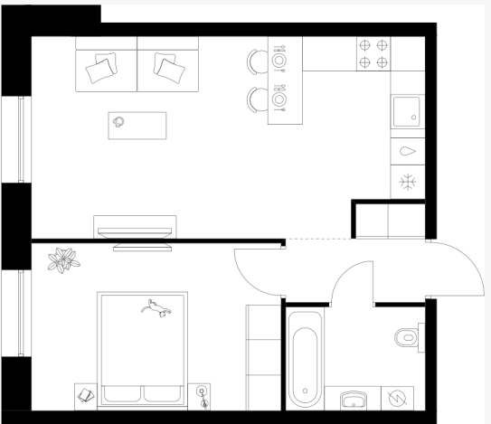
Квартиры в ЖК "Шкиперский 19" цены и планировки
Студия (8 квартир, 8 планировок)
Однокомнатные квартиры (14 квартир, 12 планировок)
Двухкомнатные квартиры (49 квартир, 32 планировки)
Трехкомнатные квартиры (20 квартир, 14 планировок)
Наличие и актуальные цены по телефону
Показать телефонЖК "Шкиперский 19" на карте
Варианты оплаты ЖК "Шкиперский 19"
- Долг – ₽
 - Проценты – ₽
 
Правовые документы
Соседние новостройки
-   
 ЖК "Парусная 1" Василеостровский район (м. Приморская)
от 1 409 515 руб. -   
 ЖК Monodom ART Василеостровский район (м. Горный институт)
от 16 951 090 руб. -   
 ЖК "Ассамблея" Василеостровский район (м. Горный институт)
от 11 011 052 руб. -   
 ЖК "Legenda... Василеостровский район (м. Горный институт)
от 12 219 129 руб. -   
 ЖК "Морская... Василеостровский район (м. Приморская)
от 25 752 240 руб. -   
 ЖК "Большой 67" Василеостровский район (м. Горный институт)
от 51 276 900 руб. 
Упоминания в новостях и статьях
- 28.07.2025
 - 31.01.2025
 - 06.08.2024
 
Похожие новостройки
-  от 7 397 416 a за студию Апартаменты "AVENUE-APART ПУЛКОВО"
 Московский районЗвездная 13 минут
Срок сдачи 3 кв 2025 — 3 кв 2025  -  от 22 339 034 a за 2 к. кв. ЖК "Лисичанская 22"
 Приморский районЧерная речка 8 минут
Срок сдачи 4 кв 2024  -  от 10 655 099 a за студию ЖК "Литера"
 Невский районЕлизаровская 5 минут
Срок сдачи 3 кв 2027  -  от 1 409 515 a за 1 к. кв. ЖК "Парусная 1"
 Василеостровский районПриморская 25 минут
Срок сдачи 4 кв 2026 — 4 кв 2026  -  от 12 219 129 a за студию ЖК "Legenda Васильевского"
 Василеостровский районГорный институт 24 минут
Срок сдачи 4 кв 2027 — 4 кв 2027  
 a
a за м²
| Тип | |
| Площадь | |
| Этаж | |
| Срок сдачи | |
| Отделка | |
| Корпус | |
| S кухни | |
| S жилая | |
| Потолки | 2.82 м | 
Обратный звонок
Заполните контактные данные. Вам перезвонят и ответят на все вопросы.
Успешно
Мы позвоним вам в и ответим на все вопросы.
- Планировка
 - На карте
 - На других этажах
 
Звонок заказан
Ожидайте, перезвоним в ближайшее
время на номер 
 
 
 
 
 
 
 
 
 
 

































































Отзывы о ЖК "Шкиперский 19" (2)
Покупка у ПИК станет вашей самой большой ошибкой, когда дома обслуживать начнут уголовники от ПИК-Комфорт!
ответить
 
														Посетил 10.05.25 так называемую "экскурсию" по строящемуся объекту, о начале которых ПИК радостно уведомил несколько раз смсками и объявлением на сайте проекта.
ответитьВся экскурсия сводится к одеванию каски, проход на 20 метров за строительные ворота и зачитыванию менеджером рекламных слоганов о проекте.
Квартиры не показывают - менеджер радостно сообщил, что им для показа выделили квартиру в другом проекте - на Лермонтовском проспекте, могу записаться и съездить туда.
Паркинг не показывают - менеджер сообщил, что там ведутся строительные работы и проход закрыт.
Двор не показывают - менеджер подсказал, что с проектом двора можно ознакомиться на сайте.
Удивлен, насколько "трепетно" ПИК относится к потраченному на посещение такой "экскурсии" времени настоящих и будущих клиентов. Просто откровенное вранье. Зачем непонятно. Но осадок остался. И подозрения, что и остальные обещания застройщика могут оказаться банальным враньём.
вам нужно зарегистрироваться
или авторизоваться