- Ленинградская область
- Всеволожский район
- ЖК "Город Звезд"
от 4 150 048 a
от 162 358 a за м²
Характеристики
| Класс жилья | Комфорт-класс |
| Тип здания | Кирпич-монолит |
| Количество этажей | 12-24 |
| Квартир | 4500+ |
| Паркинг | Подземный, Наземный |
| Отделка: |
Чистовая |
| Разрешение на строительство | Есть |
Оформление
| Оплата | ипотека |
| Договор | 214 ФЗ |
| Застройщик: | Setl Group |
| Аккредитация | Альфа Банк Промсвязьбанк Сбербанк Совкомбанк |
| Обновлено | 09 Февраля 2026 |
| Дата сдачи |
Готовые, 1кв 2026 и 2кв 2026 (подробнее↓) 1 корпус
3кв 2025 г. (Сдано в 4кв 2025 года) 2 корпус
4кв 2025 г. (Сдано в срок) 3 корпус
1кв 2026 г. (строится)
4 корпус
2кв 2026 г. (строится)
5.1 корпус
1кв 2027 г. (строится)
5.2 корпус
1кв 2027 г. (строится)
6 корпус
3кв 2027 г. (строится)
7 корпус
4кв 2027 г. (строится)
8 корпус
4кв 2027 г. (строится)
9 корпус
2кв 2028 г. (строится)
10 корпус
2кв 2028 г. (строится)
11 корпус
4кв 2028 г. (строится)
12 корпус
1кв 2029 г. (строится)
13 корпус
3кв 2029 г. (строится)
14.1 корпус
4кв 2029 г. (строится)
14.2 корпус
4кв 2029 г. (строится)
15 корпус
1кв 2030 г. (строится)
|
В активно застраивающейся деревне Новосаратовка появился новый проект комфорт-класса от компании Setl Group. Проект назван ЖК "Город звезд" и будет одним из крупнейших в регионе, строительство будет вестись в несколько этапов.
В рамках первого этапа будут возведены пять очередей, рассчитанных на почти 3000 квартир. Площадь жилья начинается от 22 кв.м. и в первых очередях почти 90% квартир это студии и однокомнатные. В очереди, планируемой к сдаче в 2027 г появятся трехкомнатные квартиры. Высота потолков 2,77 м, за исключением квартир на последних этажах, там высота потолка составит 3 м. Чистовая отделка включена в стоимость, дополнительно можно заказать меблировку за отдельную плату.
В инфраструктуру проекта будет входить единый променад на 5 км, дворы-патио, арт-сквер и четыре тематических общественных пространства, а именно площадь с фонтаном, амфитеатр-лекторий, спортивная площадь и для проведения праздников и ярмарок построят торгово-деловую площадь. В строительство первого этапа также входит два детских сада, один из них планируется к сдаче в 3 квартале 2025 г.
ЖК "Город звезд" находится в 15 минутах на автомобиле от станции метро "Обухово", до станции метро "Пролетарская" можно доехать на автобусе №693, а до станции метро "Ломоносовкая" ходит автобус №476.
Квартиры в ЖК "Город Звезд" цены и планировки
Студия (27 квартир, 27 планировок)
Однокомнатные квартиры (25 квартир, 25 планировок)
Двухкомнатные квартиры (15 квартир, 15 планировок)
Наличие и актуальные цены по телефону
+7 (812) 245-25-67ЖК "Город Звезд" на карте
Варианты оплаты ЖК "Город Звезд"
- Долг – ₽
- Проценты – ₽
Правовые документы
- Проектная декларация
- Проектная декларация (2 корпус)
- Проектная декларация (3 корпус)
- Разрешение на строительство (4 корпус)
- Проектная декларация (4 корпус)
- Разрешение на строительство
- Разрешение на строительство (2 корпус)
- Разрешение на строительство (3 корпус)
- Разрешение на строительство (5.1 корпус)
- Проектная декларация (5.1 корпус)
- Разрешение на строительство (5.2 корпус)
- Проектная декларация (5.2 корпус)
- Разрешение на строительство (9 корпус)
- Проектная декларация (9 корпус)
- Разрешение на строительство (10 корпус)
- Проектная декларация (10 корпус)
- Разрешение на строительство (11 корпус)
- Проектная декларация (11 корпус)
- Разрешение на строительство (12 корпус)
- Проектная декларация (12 корпус)
- Разрешение на строительство (13 корпус)
- Проектная декларация (13 корпус)
- Разрешение на строительство (14.1 корпус)
- Проектная декларация (14.1 корпус)
- Разрешение на строительство (14.2 корпус)
- Проектная декларация (14.2 корпус)
- Разрешение на ввод
- Разрешение на ввод (2 корпус)
- Разрешение на строительство (6 корпус)
- Проектная декларация (6 корпус)
- Шаблон ДДУ (6 корпус)
- Разрешение на строительство (7 корпус)
- Проектная декларация (7 корпус)
- Шаблон ДДУ (7 корпус)
- Разрешение на строительство (8 корпус)
- Проектная декларация (8 корпус)
- Шаблон ДДУ (8 корпус)
- Разрешение на строительство (15 корпус)
- Проектная декларация (15 корпус)
- Шаблон ДДУ (15 корпус)
Соседние новостройки
Упоминания в новостях и статьях
- 18.04.2026
- 30.12.2025
- 12.11.2025
- 30.10.2025
- 07.04.2025
Похожие новостройки
- от 4 224 730 a за студию ЖК "Ржевский парк"
Срок сдачи 2 кв 2025 — 4 кв 2028 - от 4 804 000 a за студию ЖК AEROCITY CLUB
Пушкинский районЗвездная 65 минут
Срок сдачи 4 кв 2026 - от 3 998 876 a за студию ЖК "Полис Новоселье"
Срок сдачи 2 кв 2025 — 3 кв 2028 - от 3 489 421 a за студию ЖК "Аквилон Янино"
Срок сдачи 4 кв 2026 — 4 кв 2026 - от 6 097 920 a за 1 к. кв. ЖК "Стороны света-2"
Всеволожский районДевяткино 57 минут
Срок сдачи 4 кв 2025 — 1 кв 2027
a
a за м²
| Тип | |
| Площадь | |
| Этаж | |
| Срок сдачи | |
| Отделка | |
| Корпус | |
| S кухни | |
| S жилая | |
| Потолки | 2.77 м |
Обратный звонок
Заполните контактные данные. Вам перезвонят и ответят на все вопросы.
Успешно
Мы позвоним вам в и ответим на все вопросы.
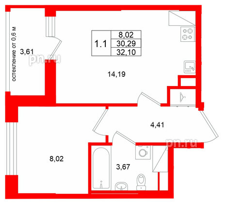
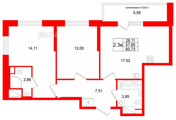
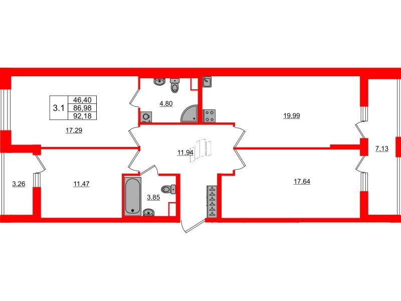
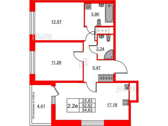
- Планировка
- На карте
- На других этажах
Звонок заказан
Ожидайте, перезвоним в ближайшее
время на номер





































































ЖК "Невская долина"
Отзывы о ЖК "Город Звезд" (25)
-
Алексей
02 Апреля, 20:22
-
Подозрительный комментарий Яна
26 Марта, 17:01
-
Подозрительный комментарий Кристина
23 Января, 17:11
Посмотреть все отзывыОфигеть! Водопроводные трубы поверх кафеля проложили! Это что за "дизайн" такой? Из каменного века?
ответитьНа прошлой неделе принимали квартиру, без недочетов не обошлось, но большинство устранили сразу. Благо не критично. В остальном все хорошо, квартира понравилась, с ожиданиями сошлась.
ответитьТоже жду ключи, периодически смотрю обзор своего дома, уже не терпится заехать
ответитьвам нужно зарегистрироваться
или авторизоваться