- Санкт-Петербург
- Московский район
- ЖК "Титул в Московском"
от 7 850 104 a
от 314 968 a за м²
Характеристики
| Класс жилья | Комфорт-класс |
| Тип здания | Кирпич-монолит |
| Количество этажей | 4-18 |
| Квартир | 1746 |
| Паркинг | Подземный, Наземный |
| Отделка: |
Чистовая |
| Разрешение на строительство | Есть |
Оформление
| Оплата | ипотека |
| Договор | 214 ФЗ |
| Застройщик: | Setl Group |
| Аккредитация | Альфа Банк Промсвязьбанк Сбербанк Совкомбанк |
| Обновлено | 09 Февраля 2026 |
| Дата сдачи |
3кв 2026 и 4кв 2028 (подробнее↓) 1.1 корпус
3кв 2026 г. (строится)
1.2 корпус
3кв 2026 г. (строится)
2 корпус
4кв 2028 г. (строится)
|
ЖК "Титул в Московском" новый проект Setl Group в Московском районе Санкт-Петербурга. В рамках первой очереди будут построены корпуса 1.1 и 1.2, рассчитанные на 1746 квартир, большинство из них студии и однокомнатные. Жилье будет передаваться с чистовой отделкой, высота потолка 2.77 м, за исключением квартир, расположенных на последних этажах, там высота потолка составит 3 м.
Фасады зданий будут декоративно подсвечены, украшены объемной кирпичной кладкой, широкими остекленными балконами.
Кроме коммерческих помещений застройщик планирует разнообразить инфраструктуру жилого комплекса двумя детскими садами, прогулочным променадом, сквером, кленовой аллей, мини-стадионом и другими элементами. К тому же запланировано открытие кабинета врача общей практики. Для новоселов будет доступна инфраструктура других объектов Setl Group, находящихся по соседству - ЖК "Философия", сданном в 2020 г, и ЖК "Сенат", планируемого к сдаче в 2025 г. За двором комплекса расположится многофункциональная площадка с игровым парком, зоной с тренажерами, полем для командных игр.
ЖК "Титул в Московском" находится в 8 минутах на автомобиле до станции метро "Московский проспект", до метро можно дойти за 25-30 минут пешком или воспользоваться общественным транспортом.
Квартиры в ЖК "Титул в Московском" цены и планировки
Студия (6 квартир, 6 планировок)
Однокомнатные квартиры (7 квартир, 7 планировок)
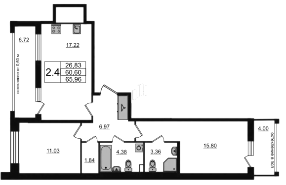
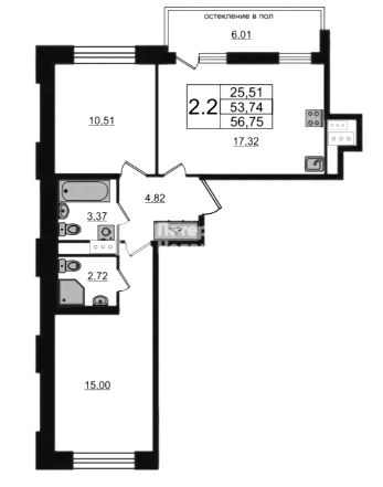
Двухкомнатные квартиры (5 квартир, 4 планировки)
Трехкомнатные квартиры (1 квартира, 1 планировка)
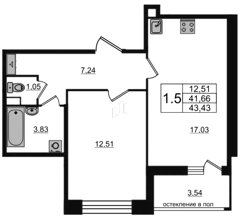
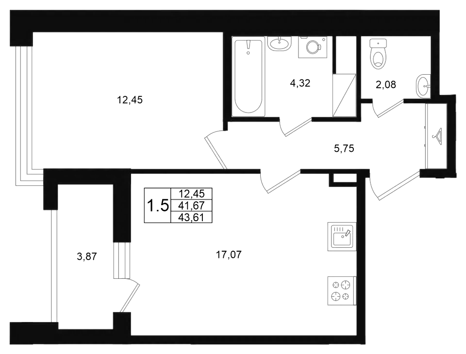
| Фото | S общ | S жил | S кухн | Этаж | Сдача | Корпус | Цена за м2 | Стоимость |
|---|---|---|---|---|---|---|---|---|
| 93.82 м2 | 47.6 | 23.61 | 8 этаж | 3 кв 2026 | 1.1 корпус 1.1 корпус | 314 968 a/м2 | 29 550 298 руб |
Наличие и актуальные цены по телефону
Показать телефонЖК "Титул в Московском" на карте
Варианты оплаты ЖК "Титул в Московском"
- Долг – ₽
- Проценты – ₽
Правовые документы
Соседние новостройки
Упоминания в новостях и статьях
- 21.11.2025
- 16.12.2024
- 03.11.2023
Похожие новостройки
- от 8 100 044 a за студию ЖК "Сэтл ЛОФТ"
Московский районЗвездная 27 минут
Срок сдачи 4 кв 2027 - от 13 066 201 a за 1 к. кв. ЖК "Квартал бизнес-класса М36"
Московский районЗвездная 27 минут
Срок сдачи 1 кв 2029 - от 7 650 004 a за студию ЖК "Сэтл Ривьера"
Невский районДыбенко ул. 48 минут
Срок сдачи 1 кв 2028 — 1 кв 2028 - от 7 600 350 a за студию ЖК "Новая земля"
Василеостровский районПриморская 60 минут
Срок сдачи 4 кв 2028 - от 7 835 990 a за студию Апартаменты Saan
Приморский районПионерская 7 минут
Срок сдачи 3 кв 2028
a
a за м²
| Тип | |
| Площадь | |
| Этаж | |
| Срок сдачи | |
| Отделка | |
| Корпус | |
| S кухни | |
| S жилая | |
| Потолки | 2.77 м |
Обратный звонок
Заполните контактные данные. Вам перезвонят и ответят на все вопросы.
Успешно
Мы позвоним вам в и ответим на все вопросы.
- Планировка
- На карте
- На других этажах
Звонок заказан
Ожидайте, перезвоним в ближайшее
время на номер


















Апартаменты "YE’S...
ЖК "Граф Орлов....
Отзывы о ЖК "Титул в Московском" (20)
-
Подозрительный комментарий Елена
18 Ноября 2025, 04:36
-
Эржена
07 Февраля, 18:36
-
Подозрительный комментарий Милена В.
22 Августа 2025, 15:55
-
Некто
17 Ноября 2025, 20:55
-
Виктор
11 Июля 2025, 20:24
-
Подозрительный комментарий Ольга
08 Августа 2025, 15:58
-
Даниил
29 Сентября 2025, 18:05
Посмотреть все отзывыА меня смущает соседство миграционного центра .Судя по информации самого большого в Петербурге.И представьте такое соседство ,где будут ползать день и ночь мигранты .Кишлак самый настоящий ,но только за огромные деньги.
ответитьчто значит ползать разве можно так о людях, в ЖК Титул тоже ждем завершения строительства очень надеемся, что со временем проблема прмзоны будет решена
ответитьКупили квартиру в этом комплексе, хороший застройщик и место нам нравится. Удобно до работы мужу, ребенку есть садики, школы больница. Плюсом по проекту здесь тоже социалка строится, поэтому сомнений сильных не было.
ответитьДа пока еще года 3,5 всё это строится вы может и работу уже смените или к локации перегорите, что захочется другую. Опять заказные отзывы от Петки или Сэтла. Выглядит так, будто жилье уже сдано. Хотя ждать его ещё минимум 3,5 года, это очевидно.
ответитьВ 27 году сдача. Могут в долгострой перевести, лучше Сенат
ответитьЭто же сетл, вероятность очень маленькая на такое. Тем более визуально видно даже, что работы там идут. У этих комплексов сроки сдачи разные, потому сравнивать тоже странно, проекты разные абсолютно
ответитьВ долгострой вряд ли переведут. Сэтл наоборот чаще всего раньше срока сдает. Ну на крайний случай хотя бы в сроки уложиться должны.
ответитьвам нужно зарегистрироваться
или авторизоваться