- Санкт-Петербург
- Калининский район
- ЖК Respect
от 10 793 032 a
от 291 602 a за м²
Характеристики
| Класс жилья | Комфорт-класс |
| Тип здания | Кирпич-монолит |
| Количество этажей | 7-13 |
| Квартир | 2200 |
| Паркинг | Подземный: 1000 м/м |
| Отделка: |
Чистовая Предчистовая |
| Разрешение на строительство | Есть |
Оформление
| Оплата | ипотека |
| Договор | 214 ФЗ |
| Застройщик: | ПСК |
| Аккредитация | Абсолют Банк Ак Барс Альфа Банк еще 6 банков↓Банк "Санкт-Петербург" ВТБ Дом РФ Сбербанк Совкомбанк Уралсиб |
| Обновлено | 01 Декабря 2025 |
| Дата сдачи |
1кв 2026 и 2кв 2027 (подробнее↓) 1 корпус
1кв 2026 г. (строится)
2 корпус
1кв 2026 г. (строится)
3 корпус
2кв 2027 г. (строится)
4 корпус
2кв 2027 г. (строится)
5 корпус
2кв 2027 г. (строится)
|
ЖК Respect от "ПСК" в Калининском районе Санкт-Петербурга рассчитан на 5 очередей. Кроме 12 жилых домов комфорт-класса застройщик возведет школу на 1125 учеников и детский сад на 240 мест. Комплекс будет оборудован собственной газовой котельной. Территория застройки 5,9 га.
Высота домов от 7 до 13 этажей, в подземной части разместится паркинг с доступом из лифта, на первых этажах откроется коммерция. Двор будет закрыт от автомобилей и поделен на функциональные зоны - для детских игр, занятий спортом и спокойного отдыха.
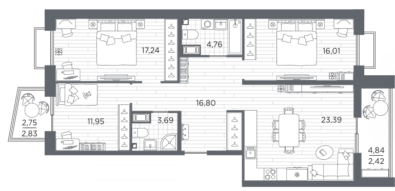
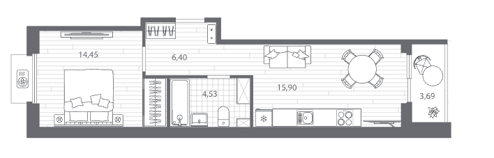
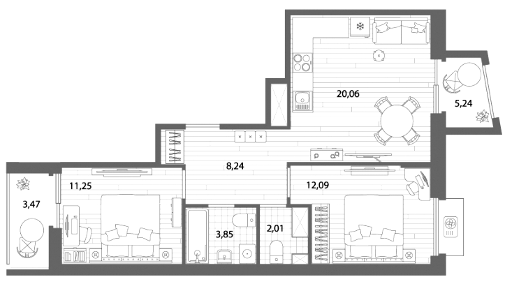
В первой очереди квартиры сдаются в предчистовой отделке, во второй появляется возможность выбора квартиры с чистовой отделкой. Квартиры представлены от студий до трехкомнатных квартир, есть варианты с балконами, с лоджиями, с двумя санузлами, с большой кухней, объединенной с гостиной. Высота потолка 2,7 м. Каждая секция будет оснащена пассажирским и грузопассажирским лифтом, на этаже в среднем будет по 6 квартир.
ЖК Respect строится на Полюстровском проспекте, в 10 минутах пешком от станции метро "Лесная" и 5 минутах от ж/д станции "Кушелевка". Через дорогу от новостройки находится ТЦ "Европолис" и Полюстровский парк. Соседство неоднородное, присутствует как и промышленная зона с заводом "Красный октябрь" и хлебозаводом "Каравай", так и многочисленные сады - Ботанический сад академии им. Кирова, сад Александра Матросова. До Пискаревского, Удельного и парка Сосновка на автомобиле 10-15 минут. До КАДа на автомобиле 15-20 минут, до ЗСД 25-30. Рядом работают магазины "ОКей", "Красное и Белое", "Вкусвилл", "Фасоль" и другие. В радиусе полукилометра работают частные и муниципальные детские сады, до ближайшей школы №104 10 минут пешком.
Квартиры в ЖК Respect цены и планировки
Студия (3 квартиры, 3 планировки)
Однокомнатные квартиры (10 квартир, 8 планировок)
Двухкомнатные квартиры (64 квартиры, 36 планировок)
Трехкомнатные квартиры (21 квартира, 10 планировок)
Наличие и актуальные цены по телефону
Показать телефонЖК Respect на карте
Варианты оплаты ЖК Respect
- Долг – ₽
- Проценты – ₽
Правовые документы
- Проектная декларация (4 корпус)
- Проектная декларация (1 корпус)
- Проектная декларация (2 корпус)
- Проектная декларация (3 корпус)
- Проектная декларация (5 корпус)
- Разрешение на строительство (4 корпус)
- Разрешение на строительство (1 корпус)
- Разрешение на строительство (2 корпус)
- Разрешение на строительство (3 корпус)
- Разрешение на строительство (5 корпус)
Соседние новостройки
Упоминания в новостях и статьях
- 24.02.2025
- 25.10.2024
Похожие новостройки
- от 8 500 180 a за студию ЖК "Сенат в Московском"
Московский районЛенинский пр. 30 минут
Срок сдачи 4 кв 2025 — 4 кв 2025 - от 7 869 900 a за студию ЖК "Большая Охта"
Красногвардейский районНовочеркасская 34 минут
Срок сдачи 3 кв 2025 — 4 кв 2027 - от 16 951 090 a за 1 к. кв. ЖК Monodom ART
Василеостровский районГорный институт 21 минут
Срок сдачи 3 кв 2026 - от 7 750 007 a за студию ЖК "Setl Лофт"
Московский районЗвездная 27 минут
Срок сдачи 4 кв 2027 - от 7 137 100 a за студию Апартаменты "Лиговский 127"
Центральный районЛиговский пр. 6 минут
Срок сдачи 3 кв 2025
a
a за м²
| Тип | |
| Площадь | |
| Этаж | |
| Срок сдачи | |
| Отделка | |
| Корпус | |
| S кухни | |
| S жилая | |
| Потолки | 2.70 м |
Обратный звонок
Заполните контактные данные. Вам перезвонят и ответят на все вопросы.
Успешно
Мы позвоним вам в и ответим на все вопросы.
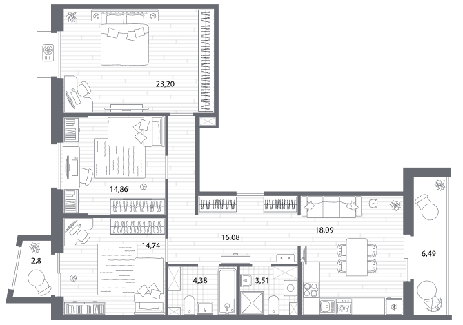
- Планировка
- На карте
- На других этажах
Звонок заказан
Ожидайте, перезвоним в ближайшее
время на номер

























































ЖК "БелАрт"
ЖК "Кантемировская,...
ЖК "Б15"
ЖК "Master Place"
Отзывы о ЖК Respect (26)
-
Людмила
25 Ноября, 12:57
-
Анна
12 Ноября, 14:59
-
София
26 Сентября, 12:14
Посмотреть все отзывыКак я рада, что мы успели взять здесь квартиру 2 года назад, потому что цены сейчас и на жилье, и на ипотеку ох как поднялись. Представляю, сколько будут стоить перед сдачей, мы бы уже точно не осилили.
ответитьНа первый взгляд все супер, комплекс получается хороший. И планировку выбрали удачную с 2 туалетами, как я и хотела. И даже своя небольшая лоджия будет. Надеюсь, будет утепленная, пока по этому вопросу информации нет.
ответитьУ меня окна получается выходят прямо на котельную с трубой. Не вижу ничего критичного, кроме нее будет на что посмотреть во дворе) Уж лучше так, чем вообще без собственной котельной, тем более она газовая.
ответитьвам нужно зарегистрироваться
или авторизоваться