- Санкт-Петербург
- Пушкинский район
- Шушары
- ЖК "Simple"
от 5 012 803 a
от 209 311 a за м²
Характеристики
| Класс жилья | Комфорт-класс |
| Тип здания | Кирпич-монолит |
| Количество этажей | 27 |
| Квартир | 1150 |
| Паркинг | Придомовой: 254 м/м |
| Отделка: |
Черновая |
| Разрешение на строительство | Есть |
Оформление
| Оплата | ипотека |
| Договор | 214 ФЗ |
| Застройщик: | БАУ СИТИ |
| Аккредитация | Абсолют Банк Альфа Банк Банк "Санкт-Петербург" еще 8 банков↓ВТБ Дом РФ Московский кредитный банк Промсвязьбанк Сбербанк Совкомбанк Уралсиб ЮниКредит Банк |
| Обновлено | 24 Октября 2025 |
| Дата сдачи |
Готовые (подробнее↓) 1-2 секция
2кв 2023 г. (Сдано в 4кв 2023 года) 3 секция
2кв 2023 г. (Сдано в 4кв 2023 года) 4 секция
2кв 2023 г. (Сдано в 4кв 2023 года) |
ЖК "Simple" — три 26-этажных корпуса на Школьной улице в Шушарах от компании "Шельф". Учредителем застройщика выступает Bau City Development. Продажи стартуют в сентябре 2021 года.
Детали проекта
Кирпично-монолитные дома будут выдержаны в классическом стиле: с пилястрами и светодиодной архитектурной подсветкой. Фасады на уровне первых двух этажей облицуют керамогранитом.
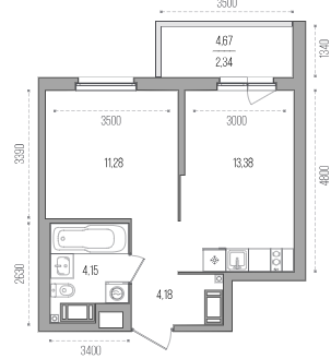
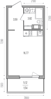
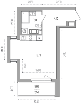
В новостройке 1150 квартир, из которых студии и однокомнатные занимают 87%. Двухкомнатных вариантов всего 150, трехкомнатных — 25. Часть планировок с балконами глубиной 1,5 метра и кухнями-гостиными размером 38 кв. м. Площадь жилья от 30 до 80 кв. м. Число лотов на этаже достигает 13 штук.
Квартиры передаются с предчистовой отделкой, которая включает:
- разводку труб отопления и электрических проводов;
- монтаж розеток и выключателей;
- стяжку пола с шумоизоляцией.
В секциях установят лифты Otis Gen2 с отделкой Ambiance. Предусмотрен индивидуальный тепловой пункт, кладовые и коммерческие помещения. Входные группы сделают с витражным остеклением и без порогов. Попасть в холл можно будет с улицы и со двора. В парадных предусмотрены колясочные, лаунж-зоны и гостевые санузлы.
Во дворе устроят игровые и спортплощадки, высадят деревья. Паркинг будет открытого типа на 254 машины и 151 велосипед. Вход для посторонних на территорию закрыт. Жители смогут пользоваться магнитными картами. На въезде установят шлагбаум, по периметру домов — живую изгородь, в подъездах — камеры видеонаблюдения.
Окружение
Жилой комплекс "Simple" находится вдали от крупных парков. Поблизости КАД, поэтому воздух сильно загрязнен выхлопными газами.
Из объектов инфраструктуры в соседних кварталах имеются школа №93, рассчитанная на 1375 учеников, два детских сада, крытый паркинг на 499 автомобилей, несколько универсамов сети "Пятерочка", "Перекресток" и "Верный". До поликлиники №60 можно дойти за 10 минут.
Транспортную доступность обеспечивает Московское шоссе. В минуте езды развязка КАД. До станций метро "Звездная" и "Купчино" налажено автобусное сообщение.
Квартиры в ЖК "Simple" цены и планировки
Студия (4 квартиры, 4 планировки)
Однокомнатные квартиры (4 квартиры, 4 планировки)
Наличие и актуальные цены по телефону
Показать телефонBau City Development на рынке не новичок. Жилой комплекс в Московском районе стал дебютом застройщика, который он сдал с опозданием на восемь месяцев. Но квартир в продаже там сейчас почти не осталось, что свидетельствует о высоком спросе. Впрочем, в проектах высокого класса куда более важно качество, чем сроки.
ЖК "Simple", в отличие комплекса на Космонавтов, представлен в сегменте "комфорт". Здесь требования менее строгие. К плюсам проекта отнесем предчистовую отделку, закрытую территорию и видеонаблюдение. Но застройщик не предусмотрел крытого паркинга, а количество машиномест на гостевой стоянке в 4,5 раза меньше квартир. Огорчает также большое количество соседей на этаже. Планировки в основном мелкой нарезки. Двушки и трешки составляют всего около 15%.
- Экология
- Транспортная доступность
- Инфраструктура
- Цена/качество
ЖК "Simple" на карте
Варианты оплаты ЖК "Simple"
- Долг – ₽
- Проценты – ₽
Правовые документы
- Проектная декларация (1-2 секция)
- Разрешение на строительство (3 секция)
- Проектная декларация (3 секция)
- Разрешение на строительство (4 секция)
- Проектная декларация (4 секция)
- Разрешение на строительство (1-2 секция)
- Шаблон ДДУ (1-2 секция)
- Шаблон ДДУ (3 секция)
- Шаблон ДДУ (4 секция)
- Разрешение на ввод (1-2 секция)
- Разрешение на ввод (3 секция)
- Разрешение на ввод (4 секция)
Соседние новостройки
-
ЖК "Московский" Пушкинский район (м. Купчино)
-
ЖК "Алексеевский... Пушкинский район (м. Купчино)
-
ЖК "CHKALOV" Пушкинский район (м. Купчино)
-
ЖК AEROCITY 4 Пушкинский район (м. Купчино)
от 3 983 100 руб. -
ЖК "Аквилон All In... Пушкинский район (м. Купчино)
от 5 011 886 руб. -
ЖК AEROCITY 3 Пушкинский район (м. Купчино)
от 8 133 450 руб. -
ЖК AEROCITY 2 Пушкинский район (м. Купчино)
от 4 828 500 руб. -
ЖК "AEROCITY Family" Пушкинский район (м. Купчино)
-
ЖК "AEROCITY CLUB" Пушкинский район (м. Звездная)
от 4 247 100 руб. -
ЖК "Клюква Парк" Пушкинский район (м. Звездная)
от 6 107 780 руб. -
ЖК "Setl Лофт" Московский район (м. Звездная)
от 7 300 098 руб.
Упоминания в новостях и статьях
- 04.10.2022
Похожие новостройки
- от 7 145 962 a за студию ЖК "Байрон"
Выборгский районПроспект Просвещения 39 минут
Срок сдачи 1 кв 2024 — 1 кв 2024 - от 22 632 000 a за 3 к. кв. ЖК "Нахимов"
Василеостровский районПриморская 38 минут
Срок сдачи 2 кв 2023 - от 5 409 511 a за студию ЖК "FRIENDS"
Приморский районПроспект Просвещения 12 минут
Срок сдачи 1 кв 2024 — 1 кв 2024 - от 9 013 116 a за 1 к. кв. ЖК "Мурино Space"
Всеволожский районДевяткино 28 минут
Срок сдачи 4 кв 2023 — 4 кв 2023 - от 4 828 500 a за студию ЖК AEROCITY 2
Пушкинский районКупчино 64 минут
Срок сдачи 3 кв 2023
a
a за м²
| Тип | |
| Площадь | |
| Этаж | |
| Срок сдачи | |
| Отделка | |
| Корпус | |
| S кухни | |
| S жилая | |
| Потолки | 2.60 м |
Обратный звонок
Заполните контактные данные. Вам перезвонят и ответят на все вопросы.
Успешно
Мы позвоним вам в и ответим на все вопросы.
- Планировка
- На карте
- На других этажах
Звонок заказан
Ожидайте, перезвоним в ближайшее
время на номер








Отзывы о ЖК "Simple" (31)
-
Подозрительный комментарий Анна
28 Января, 17:52
-
Николай
28 Октября 2024, 20:31
-
Мария
23 Июля 2024, 23:34
-
Подозрительный комментарий Рим
05 Августа 2024, 11:49
Посмотреть все отзывыСамый ужасный ЖК в городе. Стены бумажные, коридоры квартир где их по 20 штук. Очень жалею о покупке
ответитьБау реально разочаровали ... Застройщик Шельф, оказался худшим застройщиком! Стены из картона!!! Что бы в старости вас сюда заселили!!! Слышно что сосед за стенкой говорит! Шельф - отстой! Не берите у них нечего! Недобросовестный застройщик!!!
ответитьУжасный жк,как начали сдаваться нет покоя,во дворах одни крики,и распитие алкоголя на лавочках.
ответитьТак и есть. Общага есть общага...
ответитьвам нужно зарегистрироваться
или авторизоваться